REQUEST A TOUR If you would like to see this home without being there in person, select the "Virtual Tour" option and your agent will contact you to discuss available opportunities.
In-PersonVirtual Tour

$849,000
Est. payment /mo
2 Beds
1 Bath
999 SqFt
UPDATED:
Key Details
Property Type Single Family Home
Sub Type Freehold
Listing Status Active
Purchase Type For Sale
Square Footage 999 sqft
Price per Sqft $849
Subdivision South Calgary
MLS® Listing ID A2272065
Style Bungalow
Bedrooms 2
Year Built 1950
Lot Size 5,242 Sqft
Acres 0.12034032
Property Sub-Type Freehold
Source Calgary Real Estate Board
Property Description
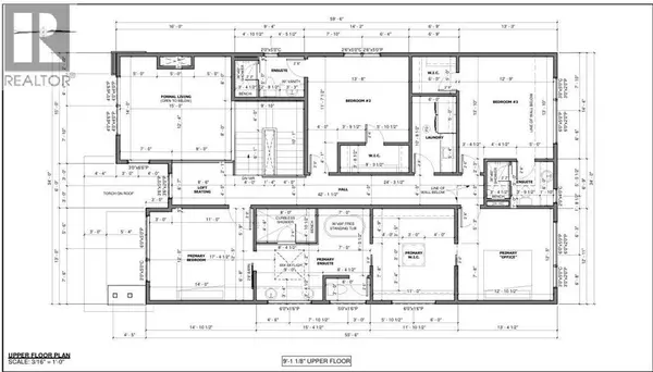
Prime Inner-City Opportunity in Marda Loop with Mountain Views!Attention builders and savvy investors! This is your chance to secure a premium 43' x 128' lot in one of Calgary's most sought-after inner-city communities. Or if you are a buyer looking for a perfect lot to build your dream home. Located just steps from the heart of Marda Loop, this property offers endless potential in a vibrant, amenity-rich neighbourhood known for its boutique shops, trendy restaurants, and walkable lifestyle.Whether you're looking to build a luxury custom home or hold as a long-term investment, this lot delivers big on location and flexibility. Development permits (DP) are approved and released, full construction plans are available, saving you time and fast-tracking your next project. The lot size easily supports a large two-storey detached home (pontentially a three-storey depending on City review and approval) with plenty of room for a spacious backyard and triple garage.Opportunities like this don't come around often, especially in a neighbourhood that continues to see strong demand and future growth. Build, invest, or hold. The choice is yours. But in Marda Loop, you're always winning. (id:24570)
Location
Province AB
Rooms
Kitchen 0.0
Extra Room 1 Main level 16.00 Ft x 11.00 Ft Primary Bedroom
Extra Room 2 Main level .00 Ft x .00 Ft 3pc Bathroom
Extra Room 3 Main level 11.00 Ft x 10.00 Ft Bedroom
Interior
Heating Forced air
Cooling None
Flooring Linoleum
Fireplaces Number 1
Exterior
Parking Features No
Fence Fence
View Y/N Yes
View View
Private Pool No
Building
Story 1
Architectural Style Bungalow
Others
Ownership Freehold
Filters Reset
Save Search
0 Properties
GET MORE INFORMATION





